01
02
03
04
05
06
07
08
09
7_Brejos
10
11
12
13
14
4_Brejos
5_Brejos
6_Brejos
8_Brejos
9_Brejos
10_Brejos
11_Brejos

Brejos

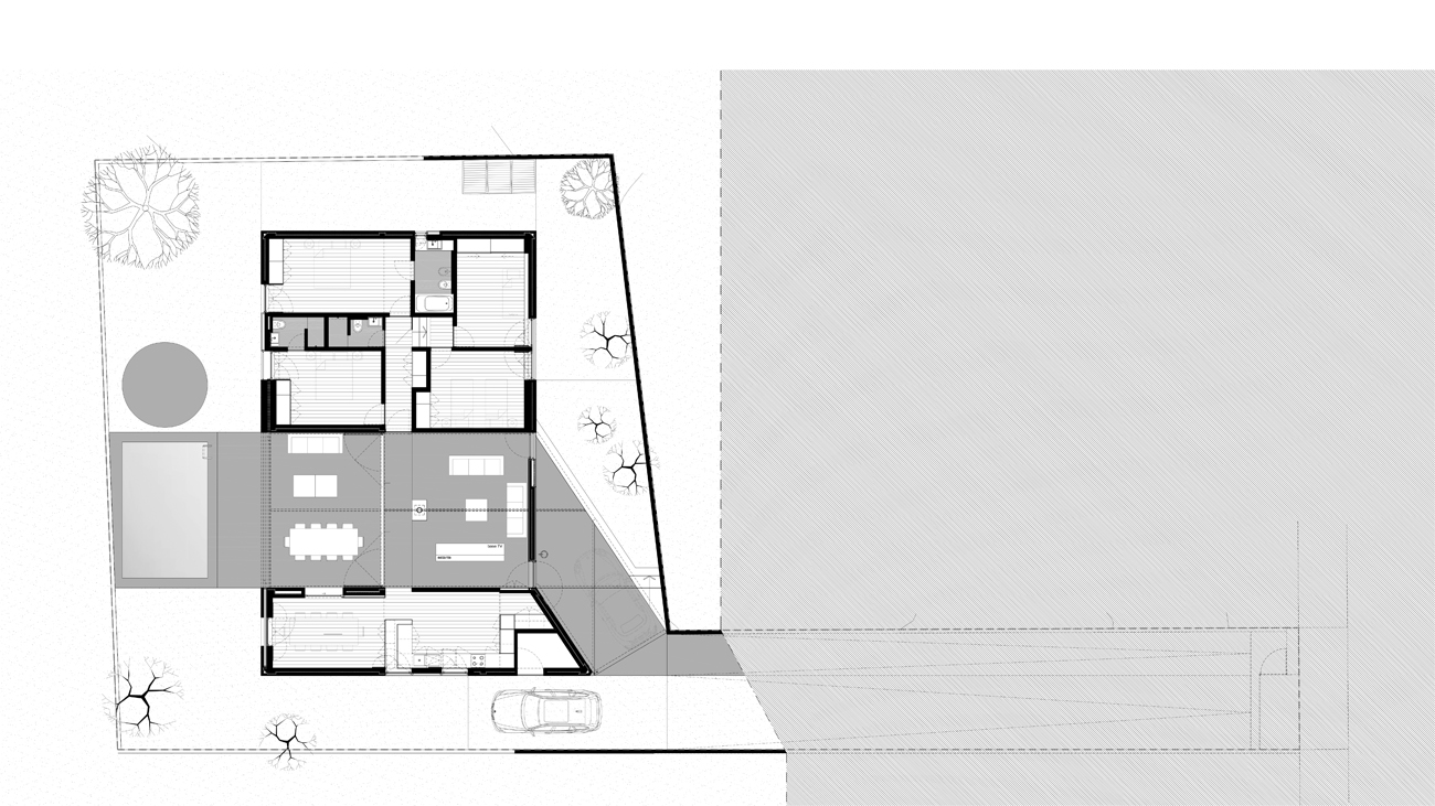
The house emerge in a subtle way. Its volumetry gradually gains its presence as the ramp path descends from the street. This intention is clear when crossing the three moments of the house: the progressive arrival to the house, the ambiguity of the interior/exterior living space and the outdoor social area on the meadow side. The pergola movement translates this transition.

The living-room is nuclear joining the four corners of the house: the street, the várzea, the rooms and the kitchen.

The living open space is opposed to the compartmentalization of the two white hermetic volumes (on one side the bedrooms and on the other the kitchen). However, this space can be lived in greater recollection through the system of exterior sliding shutters that can close it totally.

The building resumes the morphological essence of the region traditional house. It synthesizes the shape in a monochromatic materiality that includes the use of white painted wood rulers on the roof instead of the ceramic tile or thatched coating.

A casa surge de forma subtil. A sua volumetria ganha gradualmente presença à medida que se desce a rampa de acesso a partir da rua. Esta intenção está presente no percurso bem definido que atravessa os três momentos da casa: a chegada progressiva à casa, a ambiguidade do espaço interior/exterior da sala e o lado da várzea a Poente para o qual a casa está voltada. O movimento do elemento pérgola traduz esta transição.

O espaço social é nuclear ao servir de charneira para os quatro lados da casa: a rua, a várzea, os quartos e a cozinha.

Na sala vive-se um espaço aberto para o exterior, em contraponto com a compartimentação dos dois volumes herméticos brancos (de um lado os quartos e do outro a cozinha). No entanto, este espaço pode ser vivido em maior recolhimento através de um sistema de portadas de correr exteriores que o podem fechar totalmente.

O edifício retoma a essência morfológica da casa tradicional daquela região. Sintetiza a forma numa materialidade monocromática que inclui a utilização de réguas de madeira pintadas de branco no revestimento do telhado em substituição à telha cerâmica ou colmo.

year:
client:

Private

location:

Brejos de Cima, Comporta, Portugal

status:

Built

team:

André Ribeiro
João Ribeiro de Almeida
André Pinto da Cunha
Bernardo Lino

photography:

Francisco Nogueira
www.francisconogueira.com