Junqueira#1
Junqueira#2
Junqueira#3
Junqueira#4
Junqueira#5
Junqueira#6
Junqueira#7
Junqueira#8
Junqueira#9
Junqueira#10
Junqueira#11
Junqueira#12
Junqueira#13
Junqueira#14
Junqueira#15
Junqueira#16
Junqueira#17
Junqueira#18
Junqueira#19
Junqueira#21
Junqueira#22
Junqueira#23
Junqueira#24
Junqueira#25
Junqueira#26
5_Altinho
4_Altinho
PDF_Page_01
PDF_Page_02
PDF_Page_03
PDF_Page_04
PDF_Page_05
PDF_Page_06
PDF_Page_07
PDF_Page_08
PDF_Page_09
PDF_Page_10
PDF_Page_11
PDF_Page_12

Altinho

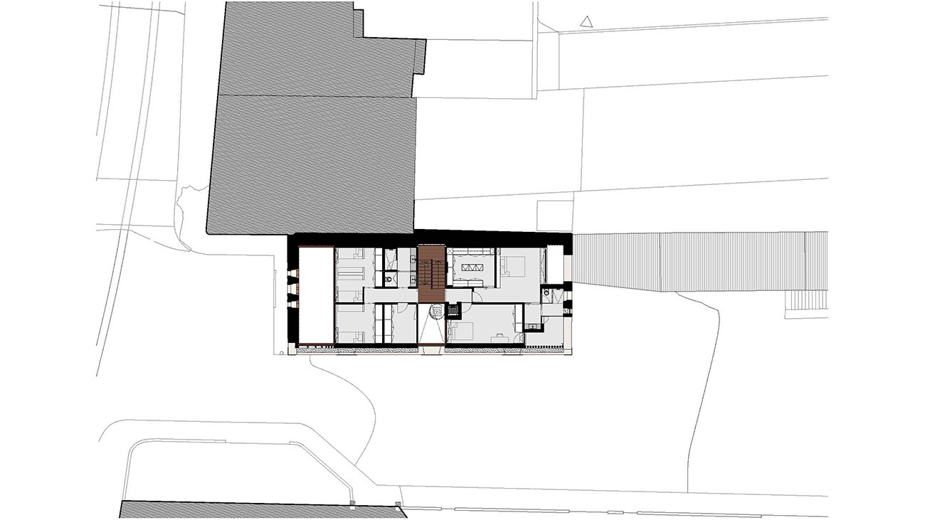
The site is called Altinho probably because of it’s on a higher level than the Rua da Junqueira which is mostly in a lower plan. From the little square you can get a privileged view of the current Electricity Museum and the river.

The logistic nature of the building is related to the river nature of the city. It is integrated in the wide waist of manufacturing and logistic warehouses that spreads and swarm in an irregular line along the Tagus banks in streets like Junqueira, Pedrouços, Dom Luis I, Rua da Alfândega, Rua of the Tobacco Garden, Calçada de la Cruz de Pedra, Xabregas, etc.

The option of maintaining the original walled perimeter rests on the interpretation of the intrinsic value of this morphology in the context of Junqueira and the city.

The house is born of the confrontation of two archetypes – house vs. warehouse – confronting shapes, scales and materials. Thus, the house occupies the walled perimeter interspersing patio and terrace voids with fragmented volumes.

O sítio é denominado Altinho, provavelmente pela sua altimetria: constitui um patamar acima do nível da Rua da Junqueira. Do largo obtém-se uma situação privilegiada de vistas sobre o actual Museu da Electricidade e sobre o rio.

A natureza logística do edifício reporta à relação que a cidade de Lisboa tem desde a sua origem com o rio. Integra-se na cintura alargada paralela às margens do Tejo onde polulam armazéns fabris e logísticos em ruas como a da Junqueira, Pedrouços, Dom Luís I, Rua da Alfândega, Rua do Jardim do Tabaco, Calçada da Cruz de Pedra, Xabregas, etc.

A opção de manter o perímetro murado original assenta na interpretação do valor intrínseco desta morfologia no contexto da Junqueira e da cidade.

A casa nasce do confronto de dois arquétipos – casa versus armazém – confrontando formas, escalas e materiais. Assim, a casa ocupa o perímetro murado intercalando vazios com cheios em diferentes volumes, pátios e terraços.

year:
client:

Private

location:

Rua da Junqueira, Lisbon, Portugal

status:

Built

team:

André Ribeiro
André Pinto da Cunha
João Ribeiro de Almeida
Bernardo Lino

photography:

Francisco Nogueira
www.francisconogueira.com